Comercial a Venda - Distrito Industrial Centro Erval Velho Santa Catarina - Imovago
X

Comercial a Venda em Erval Velho, R$ 395.000,00

Código:
590271032-602

Cidade:
Erval Velho

Bairro:
Centro

Area Privativa:
1241.9 M²

Area Terreno:
1241.93 M²

Descrição

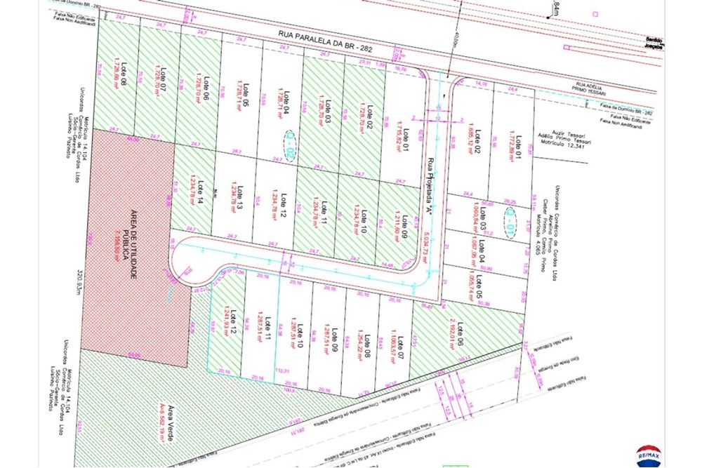
Bem vindo ao Erval Business Park, loteamento industrial.

Uma oportunidade única com 26 lotes industriais a venda, perfeitos para proprietários de empresas e investidores. Tem localização estratégica que proporciona a melhor logística para o acesso e a distribuição de cargas e mercadorias.

O Erval Business Park, é ideal para a instalação de variadas atividades industriais e também representa uma ótima opção de investimento, permitindo a construção de barracões para locação.

Completamente regularizado e licenciado, o loteamento é a escolha certa para quem busca eficiência, oportunidade e crescimento no setor industrial.

Terrenos amplos e planos 2.192,01m²

Infraestrutura completa:
Rede de distribuição de água com reservatório.
Pavimentação asfáltica
Rede de energia elétrica trifásica
Iluminação em led
Fácil acesso a BR-282
Marginal regularizada junto ao DNIT
Terrenos 100% regularizados
Passeios e acessibilidade

O Erval Business Park se destaca por sua localização, que facilita a logística de qualquer empresa. Além disso, será entregue com infraestrutura completa e 100% regularizado:

Localização privilegiada: Ás margens da BR-282, no Km 373, facilitando logística, transporte e acesso para fornecedores. Próximo de pontos estratégicos.

Diferenciais e vantagens.

Terrenos planos: O Business Park tem lotes planos e isso facilita e agiliza a instalação de qualquer empresa. Além disso, reduz o custo de terraplenagens para a preparação dos terrenos.

Energia trifásica: O loteamento será entregue com o sistema de energia trifásico, já instalado e funcionando, atendendo as normas e necessidades de operação de empresas.

Regularizado e licenciado: O Loteamento Business Park, será entregue 100% regularizado. Os terrenos tem matrículas individuais e autorização para a construção dos moveis industriais.

No Erval Business Park as possibilidades são variadas e o loteamento atende diferentes segmentos industriais.
Ideal para expandir operações de empresas, ja existentes ou para abrigar novas. Também é uma ótima opção para investidores que buscam oportunidades lucrativas no setor industrial.

Barracões ou estruturas para qualquer atividade industrial:
Metalúrgicas
Moveleira
Metal
Mecânica
Alimentos
Fabricas em geral
Centro de distribuição
Entre outras.

Lote disponível: nº 12 - Quadra 01

Enviar Proposta

Localização

Outros Imóveis no Bairro

Outros Imóveis Parecidos